Prodaja 430.000,00€ - Stanovi
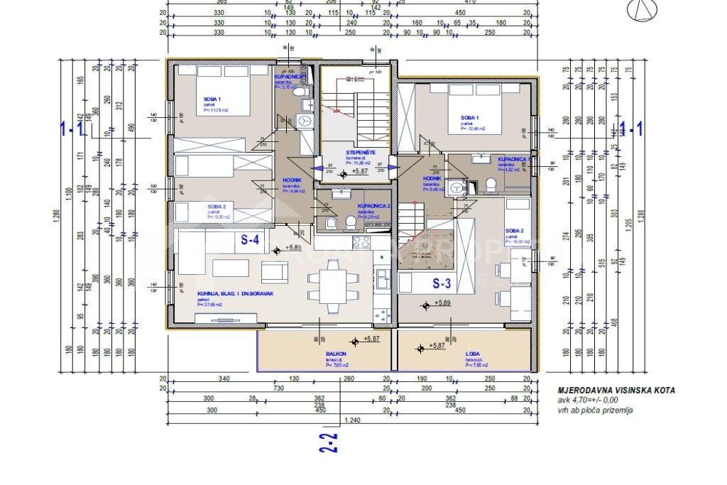
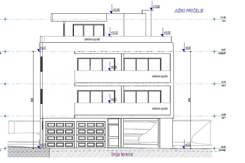
Posredujemo u prodaji novog penthouse apartmana Kaštela, na izuzetno atraktivnoj lokaciji u blizini svih sadržaja. Zgrada se nalazi 350 metara od plaže, u mirnoj ulici i blizu je svih ostalih potrebnih sadržaja poput trgovina, ljekarni, kafića i škola. Zgradu gradi renomirana tvrtka s bogatim iskustvom u novogradnjama, tako da su kupci oslobođeni poreza na nekretnine, a postoji i mogućnost kupnje na kredit. Apartman s oznakom S3 je dvoetažni apartman i nalazi se na drugom katu te se proteže na treći kat zgrade. Ima unutarnju površinu od 80,39 m2 i dodatnih 63,71 m2 terase i lođe, te ima garažu i natkriveno parkirno mjesto.
Zajedno sa svim pripadnim stvarima, ovaj novi penthouse apartman Kaštela ima neto korisnu površinu od 121 m2. Na donjoj etaži nalazi se hodnik, 2 spavaće sobe, kupaonica i lođa. Gornji kat sastoji se od hodnika, kupaonice, kuhinje s blagovaonicom i dnevnog boravka s izlazom na terasu s pogledom na more. Svaki stan je opremljen s pažnjom prema visokim građevinskim standardima. Što se tiče opreme, odabrani su renomirani proizvođači koji jamče trajnost, funkcionalnost i estetiku, podno grijanje u kupaonicama, prozori s dvostrukim ostakljenjem s plinskim punjenjem, keramički podovi do 25 € ili parket do 40 €. Očekivano useljenje je ljeto 2026. godine.





