For Sale 235.000,00€ - Apartments
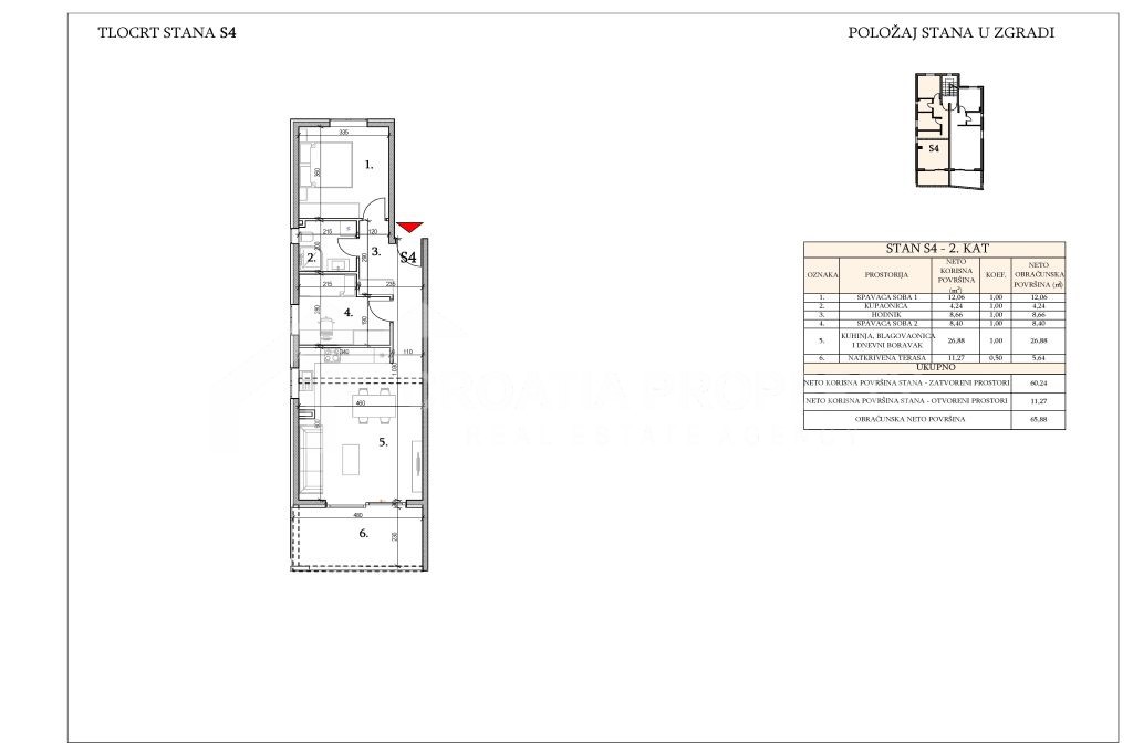
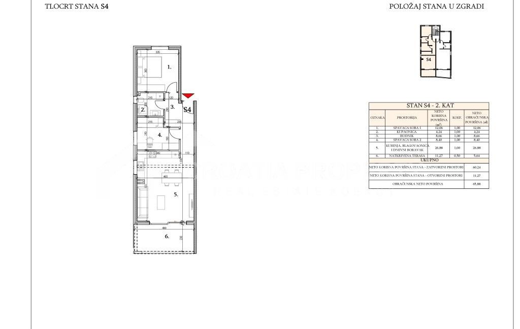
Currently under construction, for sale is a sea and city view apartment Makarska. The apartment is placed on the second floor of a smaller building. The building is in a very quiet location in the west of Makarska. It has an area of 65.88 square meters. There is a hallway, a bathroom, 2 bedrooms, a kitchen with a large living room. Exactly the kitchen and the living area offer access to a covered terrace with a gorgeous view of the city and the sea.
The price of this sea and city view apartment Makarska, includes one outdoor parking space which is a great advantage and addition. The equipment will include sanitary ware, carpentry and attractive ceramics, while the materials will be of the highest quality. The location is very quiet and the beaches, sea and other facilities are a few minutes’ drive away. The construction is expected to be completed within a year. Ownership in order.









