Prodano 999.000,00€ - Zemljišta
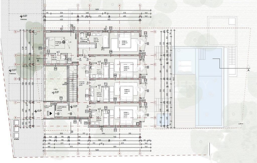
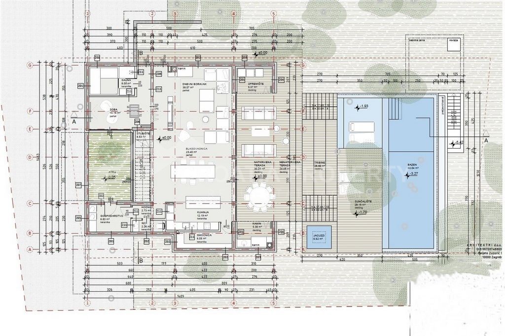
Ekskluzivno građevinsko zemljište s građevinskom dozvolom Brač, na atraktivnoj lokaciji u Sutivanu na otoku Braču je na prodaju. Parcela je pravilnog pravokutnog oblika i ima površinu od 989 četvornih metara. Od prekrasne pješčane plaže i kristalno čistog mora udaljen je svega 60 metara.
Ovo ekskluzivno građevinsko zemljište s građevinskom dozvolom Brač, temeljem građevinske dozvole, nudi mogućnost izgradnje vile na 2 etaže, prizemlja i prvog kata, ukupne neto korisne površine 343 metara kvadratnih. Cjelokupna infrastruktura se nalazi u blizini parcele. Vlasništvo je uredno.






